جميع أضواء الشوارع الشمسية تأتي من فكرة. لكي تتمكن من مشاركة الأفكار ، يجب عليك وضعها في شكل رسم. يمكن بعد ذلك استخدام رسم ضوء الشارع الشمسي في تصميم المعدات ويعمل كخطة للمنتج النهائي.
في معظم الحالات ، لا يكون الرسم الأول للمنتج بالضرورة صورة المنتج النهائي: ستكون هناك حاجة إلى مزيد من التعديل بناء على عوامل مثل توافر المواد والمعدات المرجعية.
يستخدم المصممون والمهندسون من جميع أنحاء العالم الرسومات والصور للتواصل مع بعضهم البعض. لذلك ، ستحتاج إلى إرشادات تقنية لرسم ضوء الشارع الشمسي الخاص بك لإنشاء انطباع أول جيد والتواصل بوضوح بلغة يفهمها معظم الناس في هذه الصناعة.
ستحتاج إلى تضمين رسومات على مستندات مثل مقترحات التصميم والمواصفات الفنية وتجميع المنتج في الدليل. لفهم أفضل للمتطلبات الفنية لضوء الشارع الشمسي ، ستحتاج إلى تضمين الرسومات في المستندات مثل الكتيبات والكتالوجات والأدلة والمناقصات.
أنواع الرسومات
رسومات يدوية أو إيمائية
يأتي الرسم التخطيطي من البيانات الخام في ذهنك. إنها الخطوة الأولى في رسم ضوء بدء الطاقة الشمسية ويخلق تلميحا لتصميم المنتج الكامل. لا يمثل هذا النوع من الرسم المنتج النهائي، لذا يمكنك تعديله إذا أردت.
ستحتاج إلى هذا الرسم لإيصال فكرتك إلى الورقة. أدوات الرسم غير مطلوبة. وعادة ما يتم ذلك باستخدام يدك وورقتك وقلم رصاصك.
الرسم التوضيحي
يتم إنشاء هذا النوع من الرسم لتمثيل تخطيط ضوء الشارع الشمسي. يمكن استخدامه لإظهار تدفق الكهرباء من الوحدات الشمسية ، من خلال البطارية وإلى تركيبات الإضاءة لإنتاج الضوء. وفقا لمعايير الرسم الكهربائي ، يمكن بسهولة استخدام الرسم التوضيحي لإظهار دوائر النظام بأكمله.
الرسم الهندسي
ستحتاج إلى رسم هندسي لأغراض الأبعاد. وسوف يتطلب بعض الآراء الوصفية والمقاييس المقاسة لمختلف المكونات. يمكن تمثيل المساحة والمسافة والحجم باستخدام رسم منظور: رسومات 2D أو 3D.
الرسم الفني
تستخدم معظم الشركات المصنعة الرسومات الهندسية لتحديد متطلبات هندسة ضوء الشارع الشمسي. تختلف الرسومات الفنية وفقا لاحتياجات الإسقاط الخاصة بك. يمكن أن يمثل الرسم متساوي القياس أو الإملاء الكائنات، اعتمادا على طرق العرض التي تحتاج إليها طريقتين أو ثلاث أو أربع طرق عرض.
يمكن أن يظهر الرسم متساوي القياس المظهر العام لمكون مجمع ، ولكن ليس بالضرورة التفاصيل والأبعاد.
ابعاد
ستحتاج إلى إضافة أبعاد إلى الرسم الفني الخاص بك. يجب أن يتم ذلك بأكثر الطرق فائدة ويجب أن يحتوي على أكبر عدد ممكن من الأبعاد للمساعدة في تصميم وإنتاج المكون. تحتاج إلى تحديد الأبعاد الزائدة عن الحاجة وتجنب استخدامها لأنها قد تشوش الرسم.
في البعد ، يجب عليك استخدام قيم دقيقة ووضعها بشكل مناسب دون تكرارها. أيضا ، يجب عليك استخدام جودة الخط المناسبة للوضوح.
من حيث الرسم أو الصياغة ، هناك نوعان من المعايير: ANSI وأبعاد المعايير الدولية (ISO). تتطلب العولمة استخدام قياسات معترف بها دوليا مثل النظام الدولي للوحدات (SI) والنظام المتري الجديد والنظام الإمبراطوري أو البريطاني.
التقسيم
ميزة أخرى لاستخدامها في الرسم الفني هي التقسيم. تسمح هذه التقنية للحرفي أو المستخدم برؤية ما يوجد داخل المكون أو الوحدة. يمكنك استخدام التقسيم في رسومات ضوء الشارع الشمسية لإظهار التفاصيل المعقدة للمكونات المختلفة.
يمكنك استخدام التقسيم لإظهار المكونات المخفية في مكونات ضوء الشارع الشمسية المختلفة. يمكن أن تعمل فقط في المكونات التي تحتوي على إسقاطات مقطعية. سيساعد هذا النوع من الرسم في شرح كيفية الأجزاء المعقدة لأي مكون.
أدوات للرسم
يدوي
يمكنك تحقيق مشاهدات واضحة لمكوناتك باستخدام الاستخدام الحر إذا كان لديك فنان في فريقك. يستغرق الرسم باليد وقتا أقل ، ويتم استخدامه في صنع القرار ونقل الأفكار على الورق. يمكن رسم الرسومات باليد وهي ليست تقنية للغاية لأنها تمثل فكرة.
صكوك الصياغة اليدوية
يمكن أن تكون البرامج المستخدمة في الرسم مكلفة للغاية لامتلاكها ، لذا فإن الأداة الأقل تكلفة التي يستخدمها معظم المصممين والمهندسين هي استخدام أدوات الصياغة اليدوية. تساعد أدوات الصياغة اليدوية المصمم على القياس ورسم خطوط مستقيمة وإنشاء زوايا. وهي تشمل المساطر ، والمنقلات ، وصياغة البوصلات والمنحنيات ، وطاولة صياغة مسطحة.
برمجيات
عندما يتعلق الأمر برسم تمثيل واضح للمنتج النهائي ، يمكنك استخدام مصمم محترف للقيام بذلك يدويا ، لكن الكثيرين يختارون استخدام البرنامج. هناك العديد من برامج الصياغة أو التصميم بمساعدة الكمبيوتر ، أو برامج CAD المتاحة لمساعدتك في الرسم.
يمكن أن يساعدك برنامج CAD على التقاط جميع الزوايا والدقة والتفاصيل المهمة التي قد تكون صعبة أو تستغرق وقتا طويلا باستخدام أدوات أخرى. قد يمنحك أيضا عرضا منفجرا لنظام إضاءة الشوارع ، وهو رسم تخطيطي مهم في تجميع وتفكيك أي معدات.
ميزة استخدام CAD هي أنه يمكنك إضافة الملمس واللون والميزات الأخرى مثل مفاصل اللحام إلى رسوماتك. يتيح لك الرسم باستخدام البرنامج إضافة خصائص يمكن ملاحظتها للمنتج إلى الرسم.
معايير الرسم
معايير واتفاقيات الرسم الأساسية هي نفسها في كل مكان. لتحسين التواصل ، تحتاج إلى استخدام معايير التصميم المعماري أو الهندسي أو الصناعي الشائعة. السوق المستهدف والامتثال للجودة الدولية سيحدد المعايير. لتعزيز التجارة ، سيكون عليك استخدام المعايير المعترف بها دوليا.
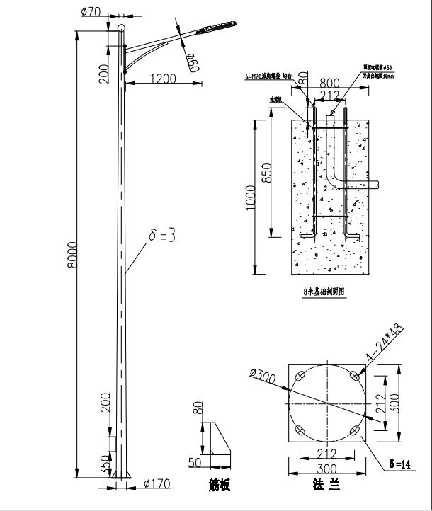
تفاصيل الرسم
يجب أن يلتقط رسم ضوء الشارع الشمسي معلومات الأبعاد والتصميم الخاصة ب:
نظام
مكونات
الاعمده
الأسلحة والأقواس,
الأسس
الأسلاك والكابلات
سيساعدك المبدأ التوجيهي الفني لرسم ضوء الشارع الشمسي في إنتاج المكونات المعيبة وتركيبها وتوصيلها واستبدالها. يعد استخدام الرسم كتقنية لوصف منتج ما أكثر فعالية من السرد الفني ويوفر الوقت وأي ارتباك ناتج عن استخدام المصطلحات أو الكلمات التقنية.





